事業案内


鉄骨構造物計算

  • 手計算
  • 解析ソフト計算
  • その他
架構計算

熱応力計算

  • 解析ソフト計算
  • 圧力に伴う強度計算
  • その他
熱応力解析

圧力損失計算

  • エクセルデータ計算
  • 手計算
  • その他
圧力損失1 圧力損失2

貯槽/圧力容器計算

  • 手計算
  • その他
貯槽容器1 貯槽容器2

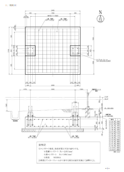
基礎設計計算

  • ローディングデータ算出
  • 手計算
基礎設計1 基礎設計2

その他機械関係計算

  • 各種部品設計計算
  • 機械構造解析